La plaza de toros de Capuchinos, o Circo de Capuchinos, es una de las más antiguas construidas en Caracas. Su fecha de inauguración se ubica en el año 1796 y estuvo situada en la manzana triangular conformada por la entonces calle San Juan, hoy avenida San Martín, y las esquinas de Luzón, Jesús y Garita.
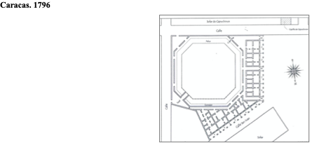
Fue una plaza de toros construida en madera, como todas las edificadas en Caracas entre el siglo XVIII y XIX, y aun cuando por esa fecha existían otros circos construidos para dar funciones taurinas, la de Capuchinos presentaba dos características particulares que la hacen única en su conformación y tipología. La primera, referida a la configuración formal tanto en la arena como en las graderías concebida tipológicamente como un polígono irregular de ocho lados.
Dos de sus lados más largos se ubican paralelos a las calles sur y este del solar de implantación de la edificación, mientras uno de sus lados más cortos hace la ochava que conforma el ángulo o esquina de Garita entre ambas calles.
La segunda, y como un aspecto realmente novedoso para la época, la plaza de toros estaba adosada por cuatro de sus lados a otra edificación de características por demás interesantes desde el punto de vista de su uso. Tal edificación albergaba una serie de espacios utilizados como talleres para artesanos, así como un espacio de exposiciones. A este edificio, proyecto del ingeniero Lartigué de Condé y mandado a edificar por el señor Capitán General, según el plano de fecha 26 de marzo de 1796, se le conoció como “Escuela Comunal”.
Leszek Zawisa en su libro “Arquitectura y Obras Públicas en Venezuela en el siglo XIX” (1988, p.42), al describir la leyenda que aparece en el plano entre otras cosas dice lo siguiente con relación al edificio: “…debe servir para enseñanza o escuela pública de los oficios que se expresan, con una pequeña casa de expósitos y de seis plazas”.
Seguidamente hace referencia a los demás espacios en los siguientes términos: “Siguen luego los ambientes agrupados en nueve secciones, cada una de las cuales corresponde en el frente a un sector de 3 inter columnios:
1. Casa de expósitos (exposiciones);
2. Oficios de fundidor – latonero;
3. Platero;
4. Talabartero;
5. Hojalatero;
6. Relojero;
7. Escultor;
8. Pintor;
9. Dorador.
En el segundo nivel se proyectaron las habitaciones”.
Bien interesante resultó el planteamiento del conjunto en cuestión porque para finales del siglo XVIII se manifestó una posibilidad, muy aceptada hoy, cuando se le dio importancia a la actividad taurina haciéndola susceptible de compartir espacio y tiempo con otros usos, en este caso comercial, que con seguridad facilitó la inserción de la fiesta en el ámbito social y urbano.
Continuando con la descripción y análisis de las edificaciones, volvamos al edificio el cual estaba compuesto por dos cuerpos. El primero y más regular era un rectángulo construido sobre el lado oeste de la plaza y separado de esta por un pasillo desde el cual se accedía a las localidades del coso a través de once puertas repartidas de la siguiente manera: dos en cada una de las ochavas sur-oeste, sur-este y nor-oeste, tres en el lado oeste, y dos en el lado este.
La primera de las ochavas, sur-oeste, correspondía al ingreso de las cuadrillas.
Desde el espacio conformado por la ochava sur – oeste, donde se ubica la puerta de cuadrillas - más amplio y en forma de triángulo por ser este el espacio sobrante entre el cuadrado que contenía el octógono y la ochava de la plaza - partía un pasillo que recorría la totalidad de las edificaciones comerciales.
Terminaba en una pared separadora del pasillo y el área de toriles.
En el primer cuerpo comercial, ya mencionado, se ubicaban cuatro talleres y tres accesos desde el exterior hacia el pasillo central, distribuidos, uno en cada extremo y un tercero centralizado, siendo el del lado norte en forma de “L”. El segundo cuerpo del edificio se construyó a continuación del ya descrito; su pared exterior seguía una línea recta en sentido nor-este, sur-oeste, sobre el borde de la calle terminando el bloque en ángulo de unos 45º con respecto al lado norte. Por su parte, la pared interior que definía el cuerpo del edificio continuaba paralela a la ochava nor-oeste y al lado norte. Sobre este cuerpo se ubicaban cuatro talleres y el expósito. Entre la pared exterior de la escuela comunal y el borde de la calle, así como de la plaza pública, se construyeron unos soportales a lo largo de toda la fachada.
Por su parte, el edificio de la plaza de toros estaba ubicado de manera paralela a las calles este (hoy, calle Sur 12) y sur (hoy, avenida Oeste 14). Con la calle este existía una separación ampliada en la ochava sur-este la cual seguía la regularidad del ángulo recto que conformaba la pared exterior; en tanto la nor-este tenía un desplazamiento hacia adentro debido, suponemos, a la forma del solar. A los toriles se les accedía desde la misma calle, hoy Sur 12. Desde este espacio nacía la comunicación entre el toril y la arena la cual, como espacio para la lidia de los toros, tenía unas dimensiones aproximadas a 25 metros en el sentido norte – sur, e igual tamaño en el sentido este - oeste. Las graderías tenían una capacidad aproximada de 5.000 personas
Así mismo, es importante destacar que las graderías ubicadas en el lado norte y las dos ochavas desarrolladas en los extremos del mismo, debieron construirse techadas. En el plano se observan un total de 25 columnas sobre el límite entre la arena y los palcos. Las ochavas tienen seis pórticos mientras el lado norte contiene doce. En algunos casos en este tipo de plaza se llegó a techar la totalidad de las graderías (por ejemplo, la plaza de toros de La Victoria, Aragua), razón por la cual en aquellas localidades donde incidía el sol permanentemente se gozaba, igualmente en algún momento, del placer de las sombras.
No está muy clara la fecha de desaparición del coso, ni la de otras edificaciones caraqueñas, pues las referencias que se tienen solapan el tiempo cuando se dieron funciones taurinas en ellos.
Óscar Medina/ dic 2021


No hay comentarios:
Publicar un comentario